7 maisons groupées

7 maisons groupées

ProgrammeLogements individuels et parc de stationnement souterrainMOSADEV 94MOEAntoine MORTEMARD Stéphane BIGONI SIMAMissioncomplèteSDP1 030 m2Coût1.45 M€HTLivraison2010LocalisationVillejuif
Façade contexte
Façade du bâtiment
Intérieur du bâtiment
Vue extérieure du bâtiment
Vue extérieure du bâtiment
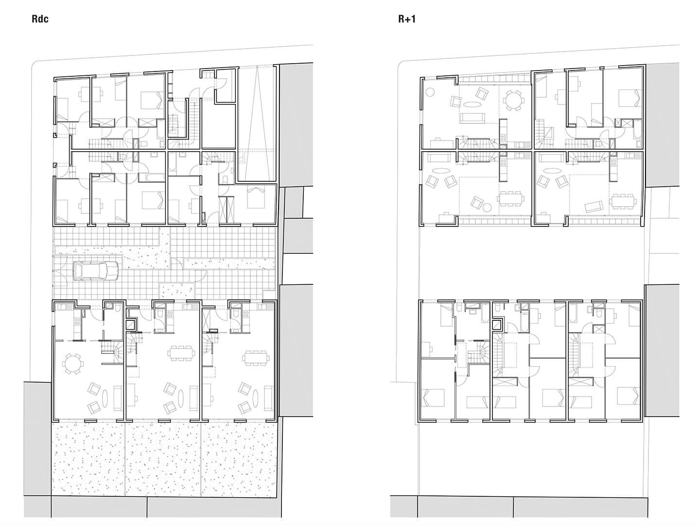
Plans du bâtiment
© 2025 Atelier d’architecture Antoine Mortemard - Design & Développement par Affaire à Suivre